Please wait
Menu
Country:
Ghana
City:
Accra
Adress:
EarlBeam Plaza, Plot No. 6 Motorway Extension, 3rd Floor.
Email:
info@spireuniversal.com || spireengineeringgh@gmail.com
Phone:
Phone: (+233) 242807099 Mobile: (+233) 545911935
Commercial

Ama Kwenowa
School Project

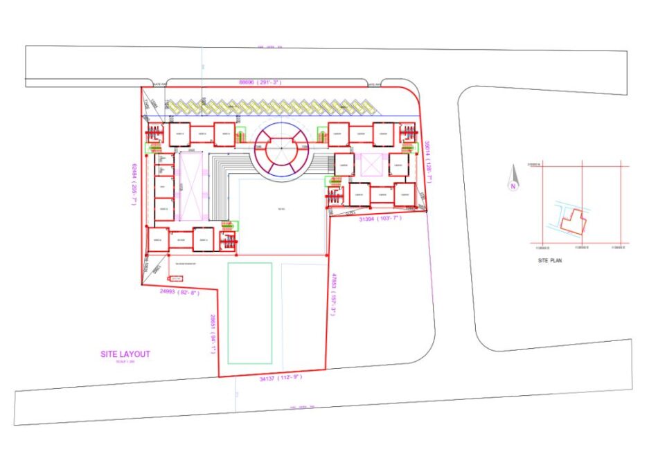
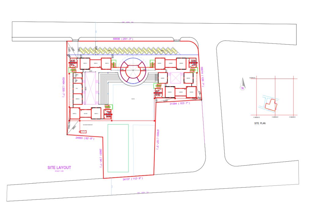
The Ama Kwenowa School Project in Bortianor, GA South, Greater Accra, stands as a testament to innovative educational infrastructure.
Scroll Down
01
Goal

The Ama Kwenowa School Project in Bortianor, GA South, Greater Accra,

stands as a testament to innovative educational infrastructure. Nestled on a hilly terrain, this three-level structure seamlessly integrates with the natural landscape, providing a picturesque and conducive environment for learning.


The school caters to students from nursery to Junior High School level, emphasizing a comprehensive educational experience. The three levels are designed to accommodate different age groups, ensuring age-appropriate facilities and learning spaces. The layout promotes a sense of unity and continuity, fostering a seamless transition for students as they progress through their academic journey.

One of the distinctive features of the Ama Kwenowa School Project is its unique circular design at the center of the layout. This circular structure serves as a focal point, symbolizing unity, inclusivity, and a holistic approach to education. Classrooms, common areas, and administrative spaces are strategically arranged around this central hub, creating a sense of community and collaboration among students, teachers, and staff.

The circular design not only adds an architectural flair but also promotes a sense of interconnectedness, reinforcing the idea that education is a continuous and holistic process. The open and welcoming design encourages collaboration and communication, fostering a positive and vibrant learning atmosphere.

In addition to its architectural uniqueness, the Ama Kwenowa School Project is equipped with modern amenities, cutting-edge educational technology, and green spaces to enhance the overall learning experience. This forward-thinking approach reflects the school's commitment to providing quality education in an environment that nurtures intellectual, social, and emotional growth.

Overall, the Ama Kwenowa School Project in Bortianor stands as a beacon of educational excellence, combining thoughtful design with a commitment to holistic learning. It serves as a model for creating educational spaces that not only meet the practical needs of students but also inspire creativity, collaboration, and a lifelong love for learning

More projects

Similar projects

Slider Navigation
Residential
Kusi Appiah

Kusi Appiah

Spire Engineering providing services to Kusi Appiah
Renovation retrofitting
Peduase Shell Filling Station

Peduase Shell Filling Station

This transformation aimed to create open spaces with fewer columns, aligning with the client's vision for the facility.
Commercial
The Forest Place

The Forest Place

The Forest Place Project in Dzorwulu introduces a striking six-storey structure that seamlessly integrates contemporary living with urban convenience.
Commercial
Prime Attorneys

Prime Attorneys

SPIRE proudly presents another ultra-modern office block located in Dzorwulu.
Commercial
Pioneer International Academy

Pioneer International Academy

Pioneer International Academy, situated in the tranquil Royal Palm Estate of Community 25, Dawhenya, Tema, is a beacon of educational promise.
Residential
Devtraco (Comm. 25)

Devtraco (Comm. 25)

A Spire Engineering project for Devtraco
Projects

We still have a lot of
interesting things!